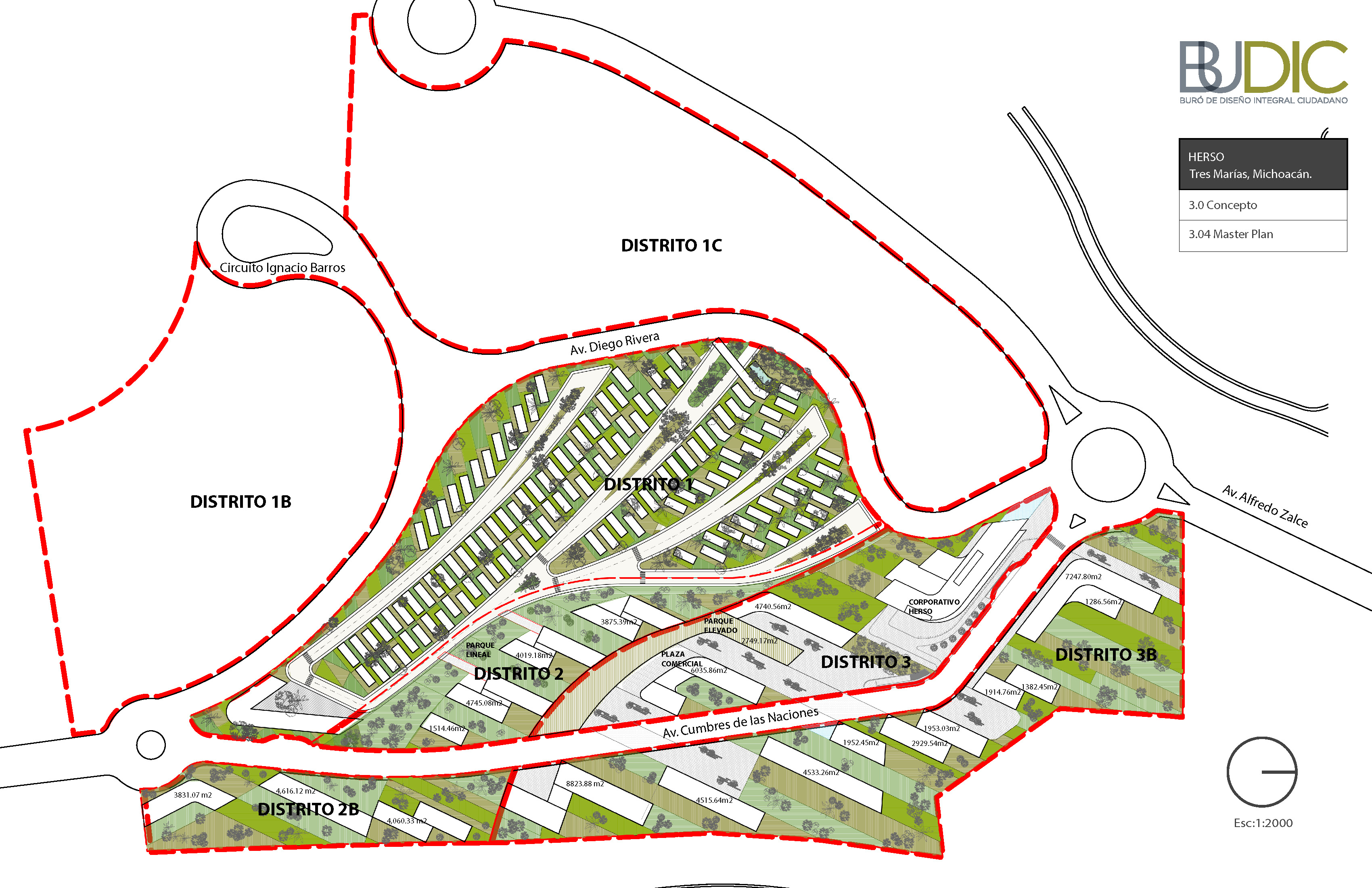
La generación formal del Masterplan parte de una operación doble, aparentemente opuesta: Integración y diferenciación. Esta operación simultánea por la cual se logran espacios continuos, pero con identidad propia es la clave para “hacer ciudad.” El proceso de diseño parte de una serie de acciones que buscan generar una visión global de proyecto: topografía, retícula y concepto de espacio abierto; y continúa con acciones específicas de diferenciación: distritos, tipologías distritales y espacio público










Tipología: Urbanismo
Ubicación:. Morelia, Michoacán
BUDIC 2013-2014
Dirección: Fernando Pérez Vera
Project Manager: Luis Ramírez Villaseca
Equipo: Gilberto Jiménez, Edel Ruíz, Rocío Varona