Tipologías de Amenidades

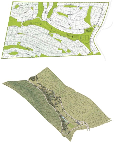
Planta de conjunto | axonométrico
Tipologías de vialidad

Secciones topográficas | Tipología de vegetación
2023
Tipología: Urbanismo
Ubicación:. Irapeo, Michoacán
BUDIC 2021
Dirección: Fernando Pérez Vera
Project Manager: Luis Ramírez Villaseca





