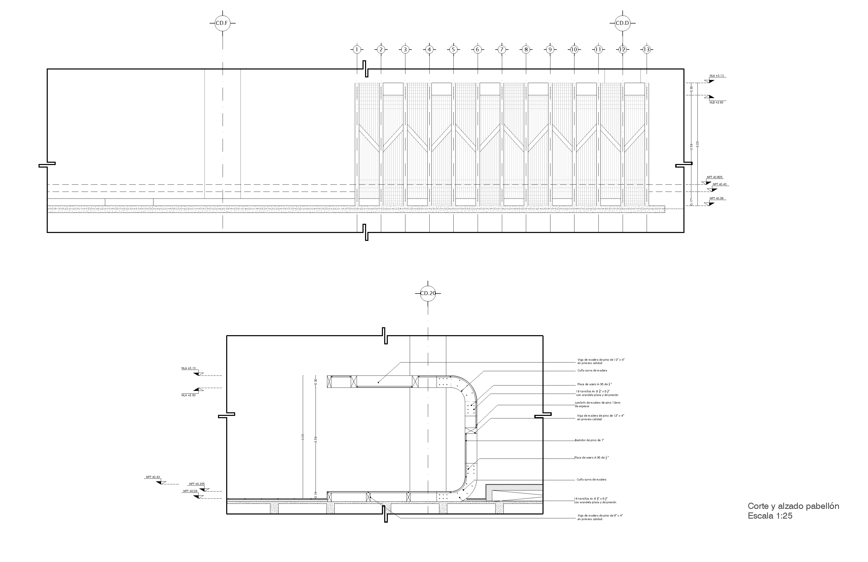
Bajo la consigna de creación de un nuevo concepto de entretenimiento que integrara restaurante, bar, boliche, salas de juegos virtuales y billares, se organizó el programa funcional en bandas, en donde se insertaron diferentes hitos formales y programáticos. Estas “cápsulas” de programa se van ligando entre sí creando diferentes ambientes. Como en un paisaje, las superficies arquitectónicas son continuas aunque en algunos casos se abren y permiten generar diferentes relaciones visuales. La superficie elegida para lograr estas relaciones visuales fue la de dos grandes celosías de más de 800 m2 que dividen e integran al mismo tiempo los diferentes ambientes del proyecto.




A esta gran celosía se le van anexando algunos elementos distintivos como las salas virtuales o las conchas de madera que van generando diferentes paquetes de programa con sus propios ambientes. De esta manera, el proyecto sólo puede ser comprendido a través de múltiples perspectivas, como un paisaje.









Tipología: Interiores
Ubicación: Morelía, Michoacán
Budic 2012
Dirección: Fernando Pérez Vera, César Villareal
Project Manager: Luis Ramírez Villaseca
Equipo: Rafael Briones